定南县人民法院向定南县自然资源局申请源江路定南县人民法院土地使用权进行确权登记。
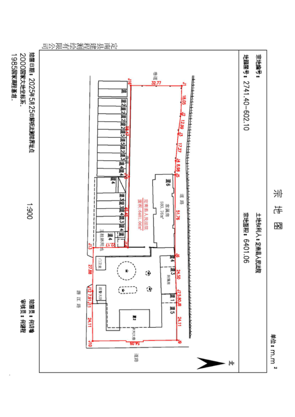
经查,定南县人民法院位于江西省定南县历市镇源江路258号,成立于1950年4月,是定南县的司法审判机构。1998年定南县人民法院因办公场所拥挤,严重影响审判人员正常办公向县政府申请新建审判法庭和办公综合楼,经县政府同意定南县人民法院于2000年10月启动建设工程,定南县建筑安装总公司承包工程,历时2年完成整体建设,2002年7月正式竣工,总占地面积为6392.19平方米。定南县人民法院审判大楼有6层呈“凹”字型,附属楼4层,门卫室1层,法警大队1层,总建筑面积5183.68平方米。源江路定南县人民法院自建成以来,一直归属地定南县人民法院管理,用于定南县人民法院办公使用。
根据《确定土地所有权和使用权若干规定》(2010修订)第三条、二十六条和《中华人民共和国土地管理法》规定国家所有土地由政府管理,拟确定该宗地为国有土地使用权。用途为机关团体用地,使用权类型为划拨,使用权人为定南县人民法院。
如对该宗地权属等有异议的单位(个人),请持相关证明材料于2025年8月28日前到定南自然资源局国土空间生态修复股与地质矿产股(联系电话:4291442),申请办理复查手续。逾期没有提出异议的,即依法确定该宗地为国有土地使用权。
2025年8月8日


